- Tipo: Casas o chalets
- Operación Venta
-
Municipio: Alcalá de Guadaíra
-
Población:Alcala de Guadaira
-
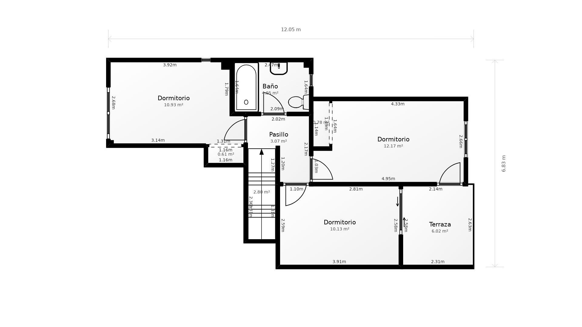
Habitaciones: 3
-
Baños: 1
-
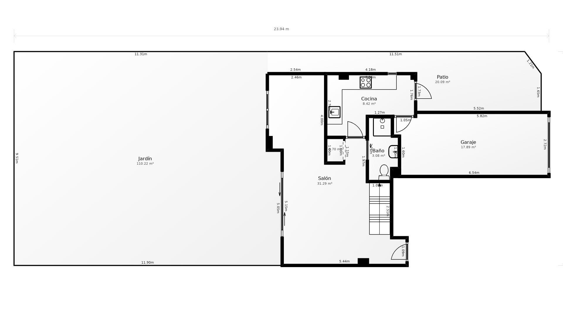
Trastero: Sí
-
Terraza: Sí
-
Metros: 122m2
-
Año de construcción: 2007
Características
- Aire acondicionado: no
- Gastos comunidad: 55
- Orientación: Este
- Estado: Disponible
Detalles
Precioso dúplex de dos plantas ubicado en una urbanización privada de Alcalá de Guadaíra, a pocos minutos de Sevilla, con magníficas zonas comunes que incluyen piscina, bar y pistas deportivas. En la planta baja dispone de un amplio salón, aseo, cocina independiente, lavadero, garaje y un espectacular jardín trasero ideal para disfrutar al aire libre. En la primera planta se encuentran tres dormitorios, un baño completo y una terrazas privativas a la cual se puede acceder desde dos dormitorios. Vivir en Alcalá de Guadaíra es disfrutar de la tranquilidad de una ciudad con alma de pueblo, pero con todas las comodidades y servicios de una gran urbe, situada a solo unos minutos de Sevilla capital. Alcalá combina perfectamente la vida moderna con la esencia andaluza: sus calles llenas de historia, su castillo medieval, el emblemático Parque Oromana y sus amplias zonas verdes hacen de ella un lugar ideal para quienes buscan calidad de vida y contacto con la naturaleza sin renunciar a la cercanía de la ciudad. Además, cuenta con excelentes conexiones por autovía, transporte público frecuente hacia Sevilla, colegios, centros comerciales, restaurantes y zonas deportivas. Sus urbanizaciones privadas ofrecen un ambiente familiar y seguro, con espacios comunes como piscinas, jardines y pistas deportivas que fomentan la vida social y el bienestar. En definitiva, Alcalá de Guadaíra es una opción perfecta para familias, profesionales y personas que valoran la tranquilidad, el espacio y el equilibrio entre trabajo y descanso, todo ello con un coste de vida más asequible que en la capital. Nota: La vivienda necesita actualización, algunas fotos decoradas son con inteligencia artificial para ver el antes y después de las estancias. Los planos proporcionados son de carácter aproximado, por lo que las dimensiones y medidas indicadas son orientativas, al igual que la perpendicularidad de las paredes, y deben ser verificadas por el comprador para garantizar su exactitud. Gastos de Notaría, Financiación, Registro e Impuestos no incluidos. Honorarios no incluidos. F.I.A. (Ficha Informativa Abreviada) y Certificación Energética a disposición del cliente.