€ 99.000
Referencia:
RMC00009000
- Tipo: Fincas y solares
- Operación Venta
-
Municipio: Jijona-Xixona
-
Población:Jijona - Xixona
-
Terraza: Sí
-
Metros parcela: 24926m2
-
Año de construcción:
Características
- Aire acondicionado: no
- Estado: Disponible
Detalles
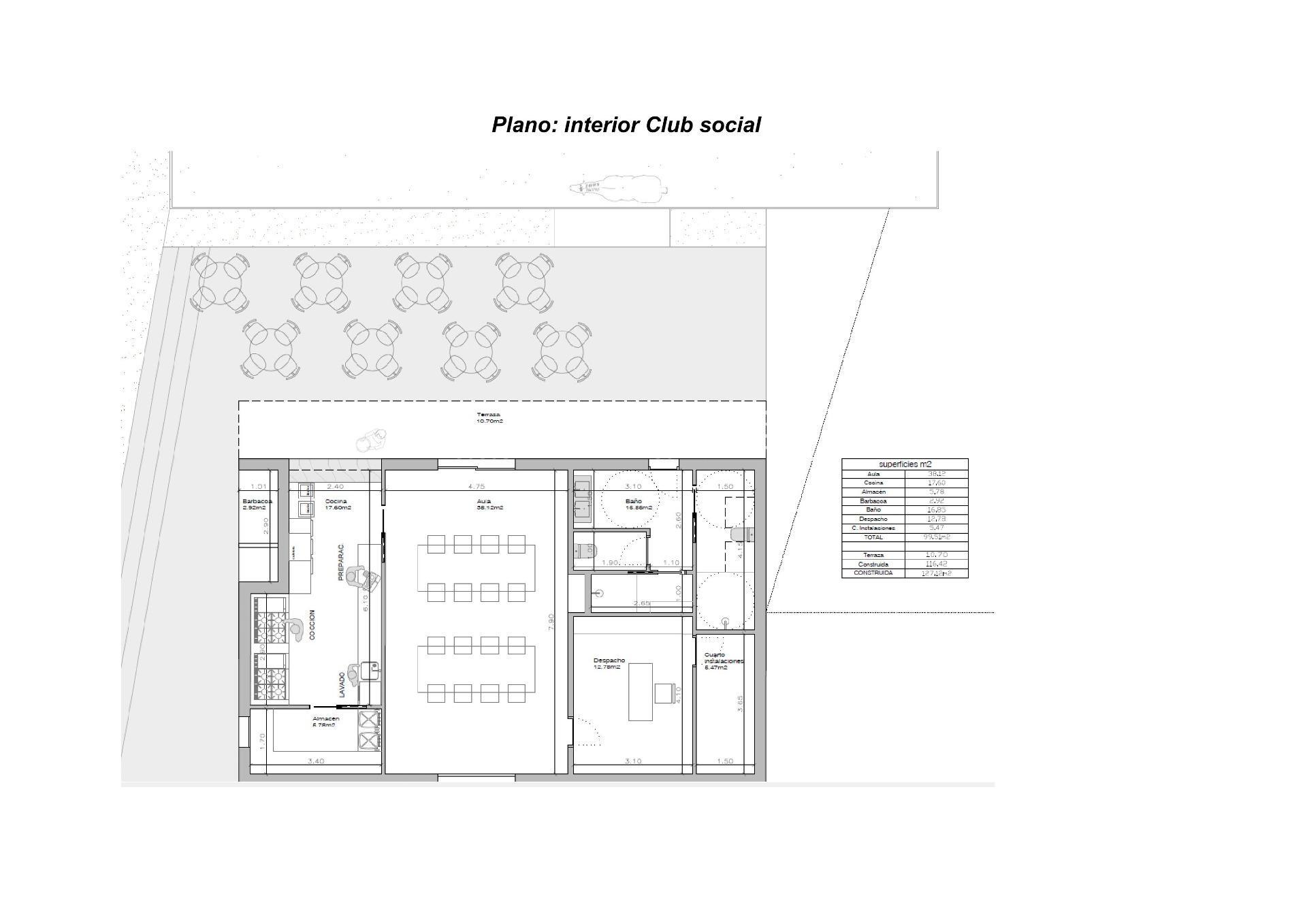
OPORTUNIDAD en la Sarga a tan solo 5 km de Alcoy y 30 de Alicante. Venta de parcela de 24.926 m2 con desarrollo de proyecto para Centro hípico con todos los permisos aprobados para poder empezar su ejecución. - Informe SMDGOPTM aprobado. - Informe DIC aprobado. - Informe SIVP aprobado. - Informe PATRICOVA aprobado. - Informe CHJ aprobado. - Informe Ayuntamiento aprobado. Si estáis pensando en desarrollar y proyecto de hípica como negocio, ésta es la oportunidad que estáis buscando. Dentro del valor del terreno, se incluye todo el desarrollo del proyecto aprobado.