- Tipo: Fincas y solares
- Operación Venta
- 
							Municipio: Arucas 
- 
							Población:Arucas 
- 
								Terraza: Sí 
- 
							Año de construcción: 
Características
- Aire acondicionado: no
- Estado: Disponible
Detalles
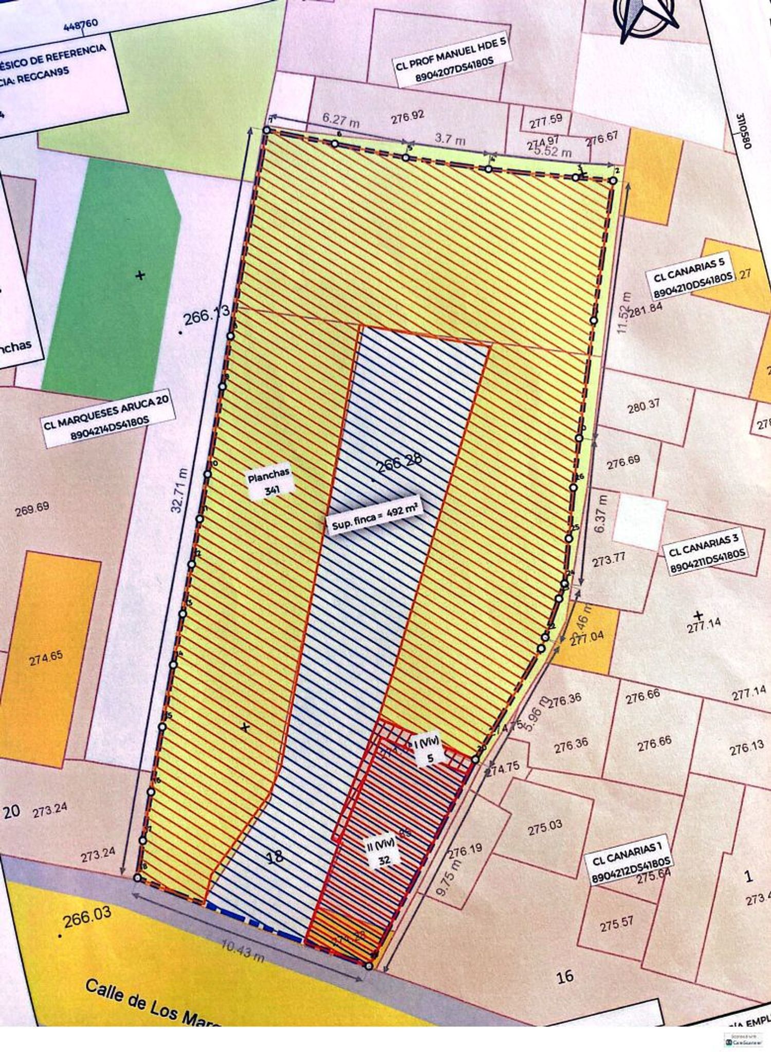
¡Atención inversores! Presentamos un terreno excepcional en el corazón de Arucas, con una superficie de 492 m², ideal para un proyecto residencial en altura. Este solar ofrece una edificabilidad entre 1183 m² y 1300 m², permitiendo la construcción de hasta cinco plantas, con dos de ellas sin retranqueo y tres adicionales con retranqueo progresivo. Además, se permite la construcción de un sótano, perfecto para aparcamientos o áreas de servicio, incrementando el valor de las futuras unidades. La distribución propuesta es altamente flexible, permitiendo la creación de viviendas de 1, 2 y 3 dormitorios, adaptándose a la creciente demanda del mercado local. Dos patios interiores de 90 m² cada uno garantizan una ventilación e iluminación natural óptimas, mejorando la calidad de vida de los residentes. Su ubicación céntrica en el casco histórico de Arucas ofrece un entorno cultural vibrante y acceso inmediato a servicios, transporte y zonas comerciales. La escasez de terrenos con estas características en Arucas convierte esta oportunidad en una inversión atractiva con excelente potencial de revalorización. No pierdas la oportunidad de desarrollar un proyecto único en una zona con alta demanda por viviendas bien ubicadas. ¡Contáctanos para más información y asegura tu inversión en este prometedor terreno! Los gastos de impuestos, notaría y registro no están incluidos en el precio de venta. La información expuesta es orientativa, no tiene carácter contractual y puede estar sujeta a errores u omisiones involuntarios.
 
																	 
																	 
																	 
																	 
																	 
																	 
																	 
																	 
																	 
																	 
																	 
																	 
																	 
																	 
																	 
																	