Dúplex Reformado en Pagés del Corro ? Ideal para Vivir o Invertir

Galería fotos
€ 270.000
Referencia: 3566-00961
  • Tipo: Pisos
  • Operación Venta
  • Localización Municipio: Burguillos
  • Localización Población:Sevilla
  • Habitaciones Habitaciones: 2
  • Baños Baños: 1
  • Terraza Terraza:
  • Metros construidos Metros: 60m2
  • Año de construcción Año de construcción: 2002

Características

  • Aire acondicionado: no
  • Gastos comunidad: 38
  • Estado: Disponible

Detalles

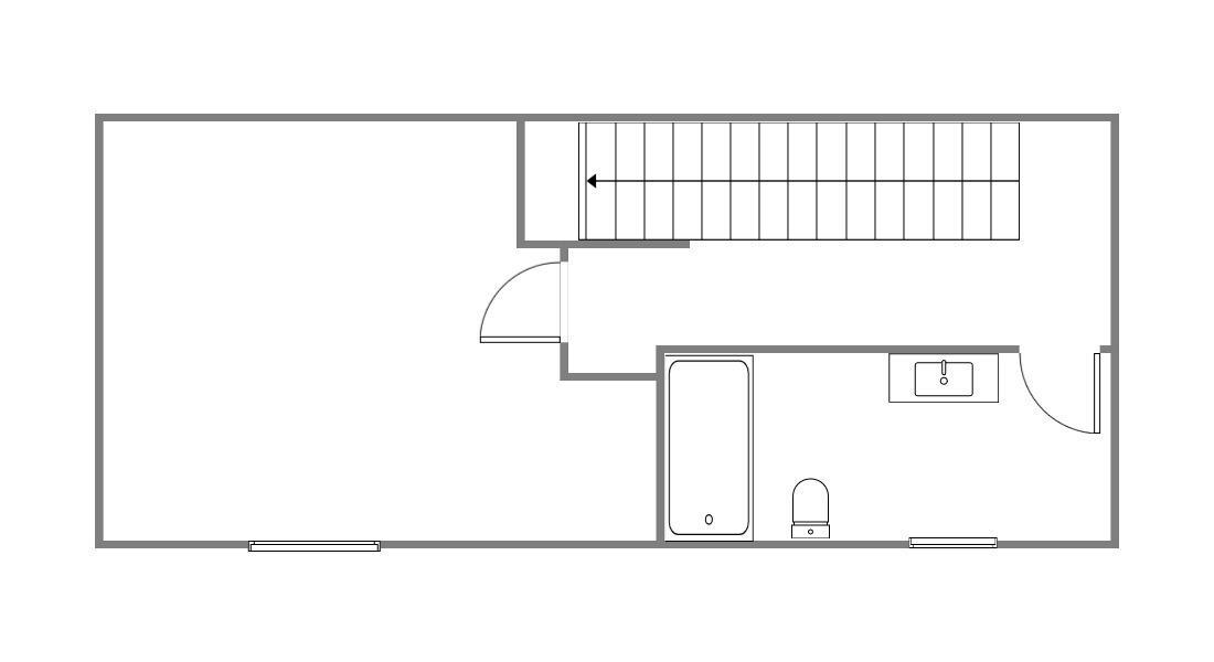
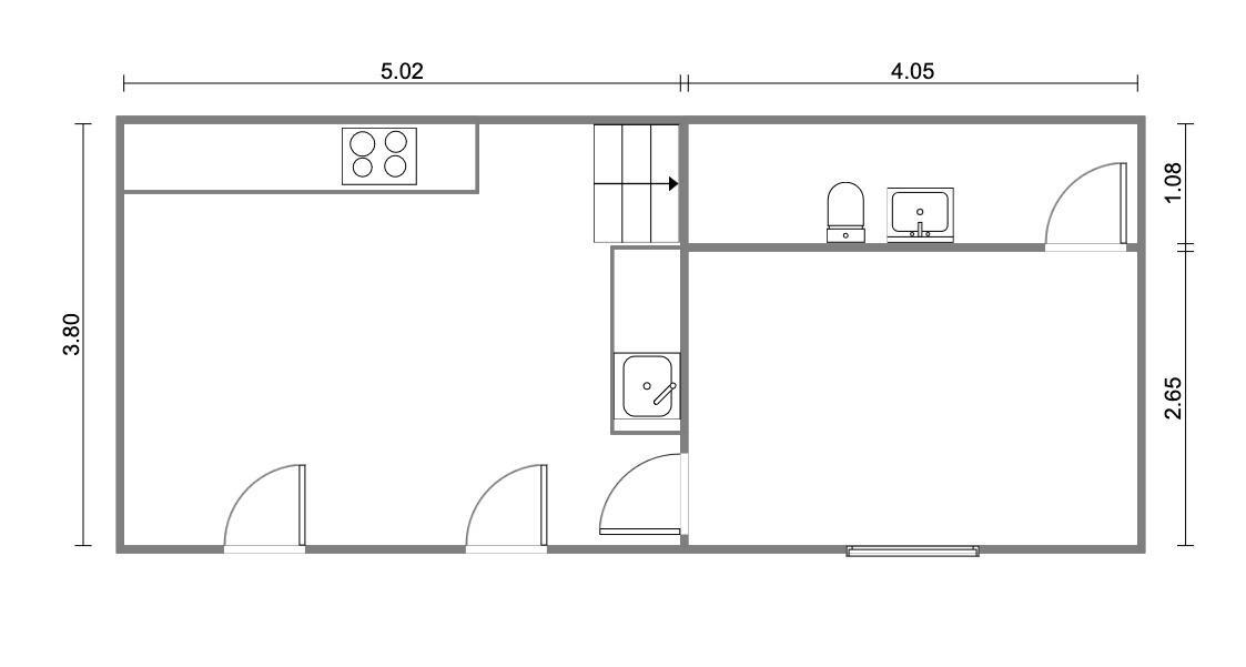
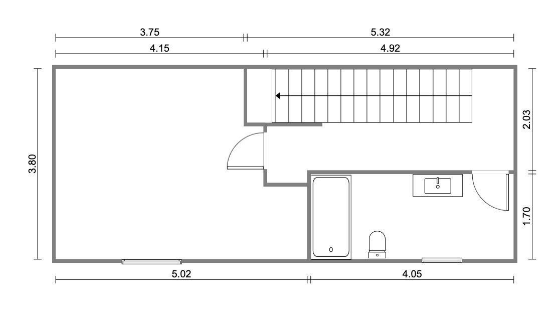
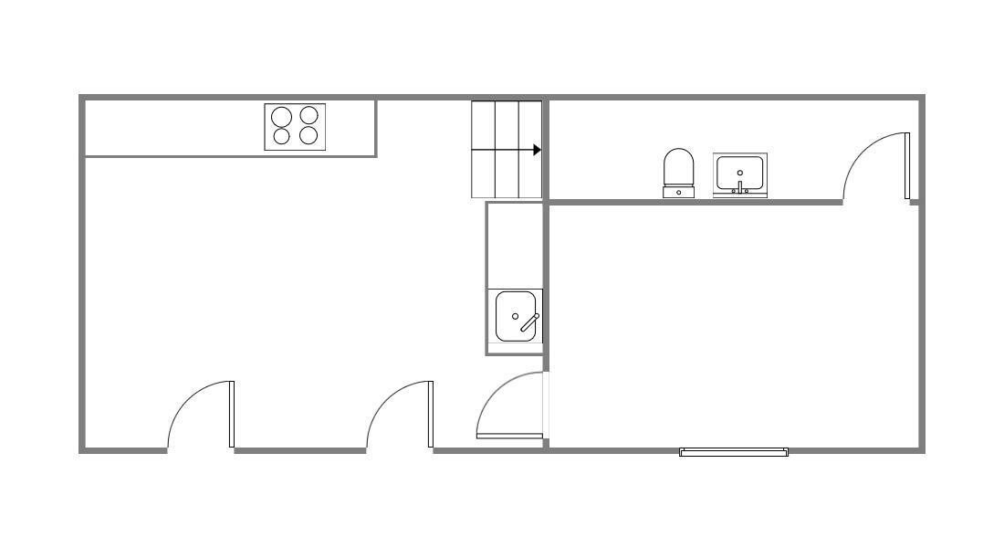
Descubre esta encantadora vivienda en el corazón de Triana, un barrio emblemático de Sevilla. Situada en un edificio del año 2002, esta joya de 60 metros cuadrados ha sido completamente reformada y renovada, ofreciendo un espacio moderno y acogedor. Cada rincón de esta vivienda refleja la esencia única de Triana, con acabados de calidad y un diseño que maximiza la luminosidad y el confort. Disfruta de la vida en un entorno lleno de historia y tradición. Esta vivienda dúplex se distribuye de la siguiente manera: - En la planta baja encontramos salón - cocina, 1 dormitorio y 1 aseo. - En la planta primera, 1 dormitorio y 1 baño. CARACTERÍSTICAS A RESALTAR: - Techos altos - Carpintería interior de madera. - Ventanas oscilobatientes de PVC lacado en blanco con doble acristalamiento. - Puerta blindada. - Suelo laminado y escalera de mármol. - Comunidad tranquila con pocos vecinos. UBICACIÓN Y ENTORNO: Entorno tranquilo, rodeados de todo tipo de servicios como pequeños comercios, centro comercial, colegios, institutos, supermercados, farmacias, centros médicos, restaurantes, cafeterías, etc. Con parada de bus a pocos minutos y a escasos minutos andando del centro de Sevilla. Excelentes salidas a Cádiz, Huelva y Mérida. No pierdas la oportunidad de vivir en un lugar que combina lo mejor de lo contemporáneo con el carácter auténtico de uno de los barrios más queridos de Sevilla. ¡VEN A VERLO Y DÉJATE ENAMORAR! PARA LA VENTA: Informamos a nuestros clientes compradores que el precio de venta no incluye lo siguiente: Honorarios de la agencia inmobiliaria, Impuestos (I. T. P. , I. V. A. o A. J. D. , en su caso) ni otros gastos de la compraventa (gastos de Registro de la Propiedad, Notaría, Gestoría ni de posible Financiación). Documento D. I. A. a disposición del consumidor según Decreto 218/2005 Junta de Andalucía.