Propiedad en venta en Valladolid, Valladolid

Galería fotos
€ 69.000
Referencia: 3025-15269
  • Tipo: Negocios
  • Operación Venta
  • Localización Municipio: Valladolid
  • Localización Población:Valladolid
  • Habitaciones Habitaciones: 4
  • Baños Baños: 2
  • Terraza Terraza:
  • Metros construidos Metros: 94m2
  • Año de construcción Año de construcción: 1997

Características

  • Aire acondicionado: no
  • Gastos comunidad: 14
  • Estado: Disponible

Detalles

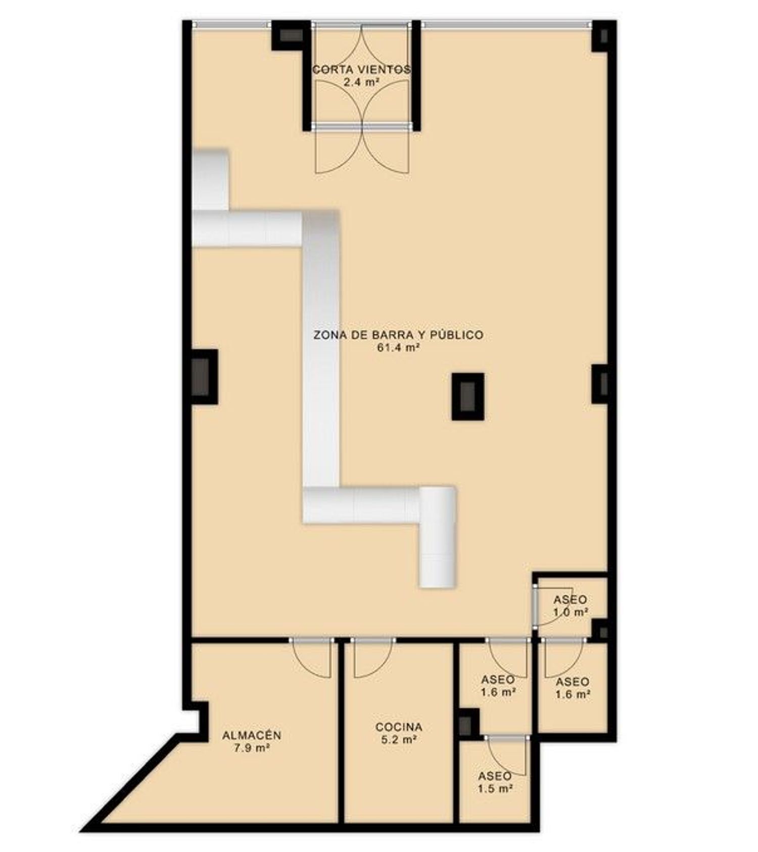
¡Oportunidad única para emprendedores! Remax Pisuerga, desde 1998 en Valladolid, te presenta un local en venta en el corazón del barrio de Covaresa de la ciudad de Valladolid. Situado en el Paseo de Alfredo Basanta, próximo a la avenida de Los Castaños. Este local acondicionado como bar-restaurante, ofrece un espacio ideal para desarrollar tu negocio en una de las mejores zonas residenciales de Valladolid. Con una superficie construida de 94 m² y una útil de 82,60 m², cuenta con una distribución funcional que incluye una amplia zona de público y barra de 61,40 m², además de cocina equipada y dos aseos. Está divido en varios espacios: -Zona de público y barra con 61.40 m² -Cortavientos de entrada con 2,40 m² -Cocina con 5.20 m² -Aseo 1 con 2.60 m² -Aseo 2 con 3.10 m² -Almacén con 7.90 m² Situada al sur de la ciudad, la zona de Covaresa, es una de las mejores zonas residenciales de Valladolid. Próxima a centros comerciales, edificios administrativos y de ocio. Paradas de autobús. Zona tranquila y bien comunicada. Con centros de deportivos cercanos, así como centro de salud. Esta zona, tiene fácil acceso y comunicaciones, y hacia el centro de la ciudad comunicando rápidamente con el Paseo Zorrilla. El local tiene una altura libre de suelo a falso techo de 2,85 m. con más altura por encima del propio falso techo. La fachada tiene una dimensión de 6,80 M, dividida en puertas de acceso y dos cristaleras a cada lado de las puertas. ALGUNAS CALIDADES DEL LOCAL: - Preinstalación de aire acondicionado - Falso techo de escayola - Iluminación empotrada - Suelos de gres - Baños acabados y equipados con sanitarios - Cocina, con mobiliario y salida de humos - Puertas de roble - Ventanas exteriores de madera NOTA: Este anuncio no es vinculante, puede contener errores, se muestra a título informativo y no contractual. El texto que se ofrece, junto con fotos y croquis del inmueble, está destinando a su uso como instrumento informativo. No tiene validez jurídica ninguna.