Propiedad en venta en Asturias, Parres

Galería fotos
€ 52.000
Referencia: 3431-17295
  • Tipo: Casas o chalets
  • Operación Venta
  • Localización Municipio: Parres
  • Localización Población:Parres
  • Habitaciones Habitaciones: 3
  • Baños Baños: 2
  • Terraza Terraza:
  • Planta Planta:
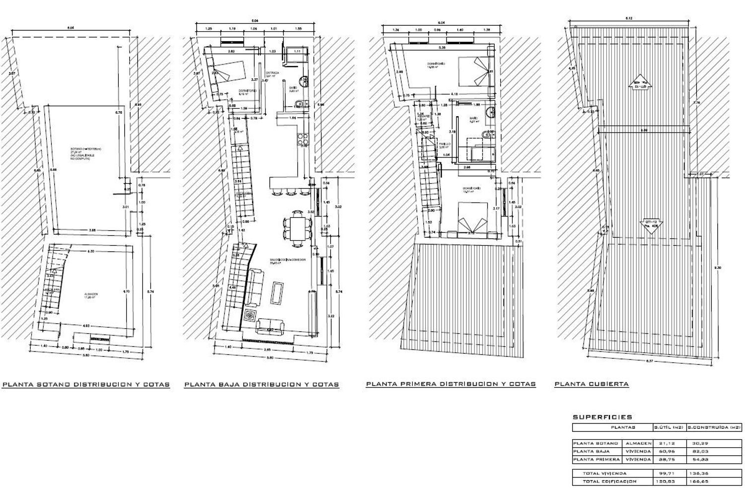
  • Metros construidos Metros: 166m2
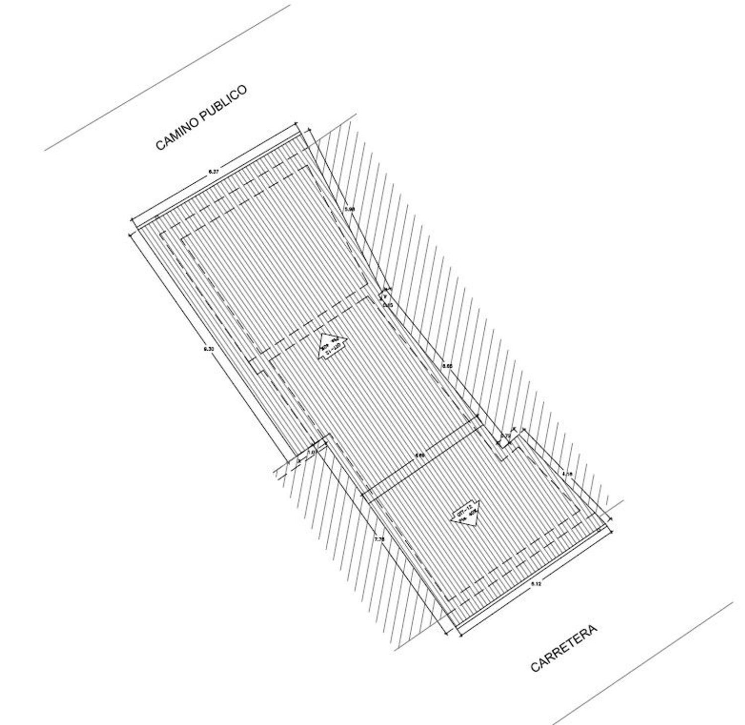
  • Parcela Metros parcela: 82m2
  • Año de construcción Año de construcción: 2020

Características

  • Aire acondicionado: no
  • Estado: Disponible

Detalles

EXCELENTE OPORTUNIDAD! Edificación en construcción con proyecto y licencia en tramitación, parte de la obra ya ejecutada (la más costosa) que permite acabar la vivienda con el programa de los planos que se adjuntan, aunque se puede adaptar a las necesidades que se deseen. La superficie se puede distribuir con infinitas posibilidades, pero en la actualidad cuenta con un almacén en planta sótano, zona de estar y cocina en planta baja con un dormitorio y baño en planta baja y dos dormitorios y baño en planta primera. Todo en base al CTE y obteniendo una calificación energética A, una vez terminada la obra. Originariamente se trata de dos predios que ya han sido agrupados en escritura, que se unifican para hacer una vivienda de mayor tamaño en un entorno excepcional y privilegiado, tranquilo pero a la vez muy bien comunicado en el núcleo de LLerandi, concejo de Parres, en la zona oriental del Principado de Asturias, cerca de la costa (Ribadesella y LLanes) y muy cerca del Parque Nacional de los Picos de Europa, la emblemática localidad de Cangas de Onís y su histórico "puente romano".