VENTA EDIFICIO DE OFICINAS EN VENTA DE BAÑOS

Galería fotos
€ 475.000
Referencia: PALENCIA-0001
  • Tipo:
  • Operación Venta
  • Localización Municipio: Venta de Baños
  • Localización Población:Venta de Baños
  • Terraza Terraza:
  • Metros construidos Metros: 500m2
  • Parcela Metros parcela: 1020m2
  • Año de construcción Año de construcción: 2000

Características

  • Aire acondicionado: no
  • Estado: Disponible

Detalles

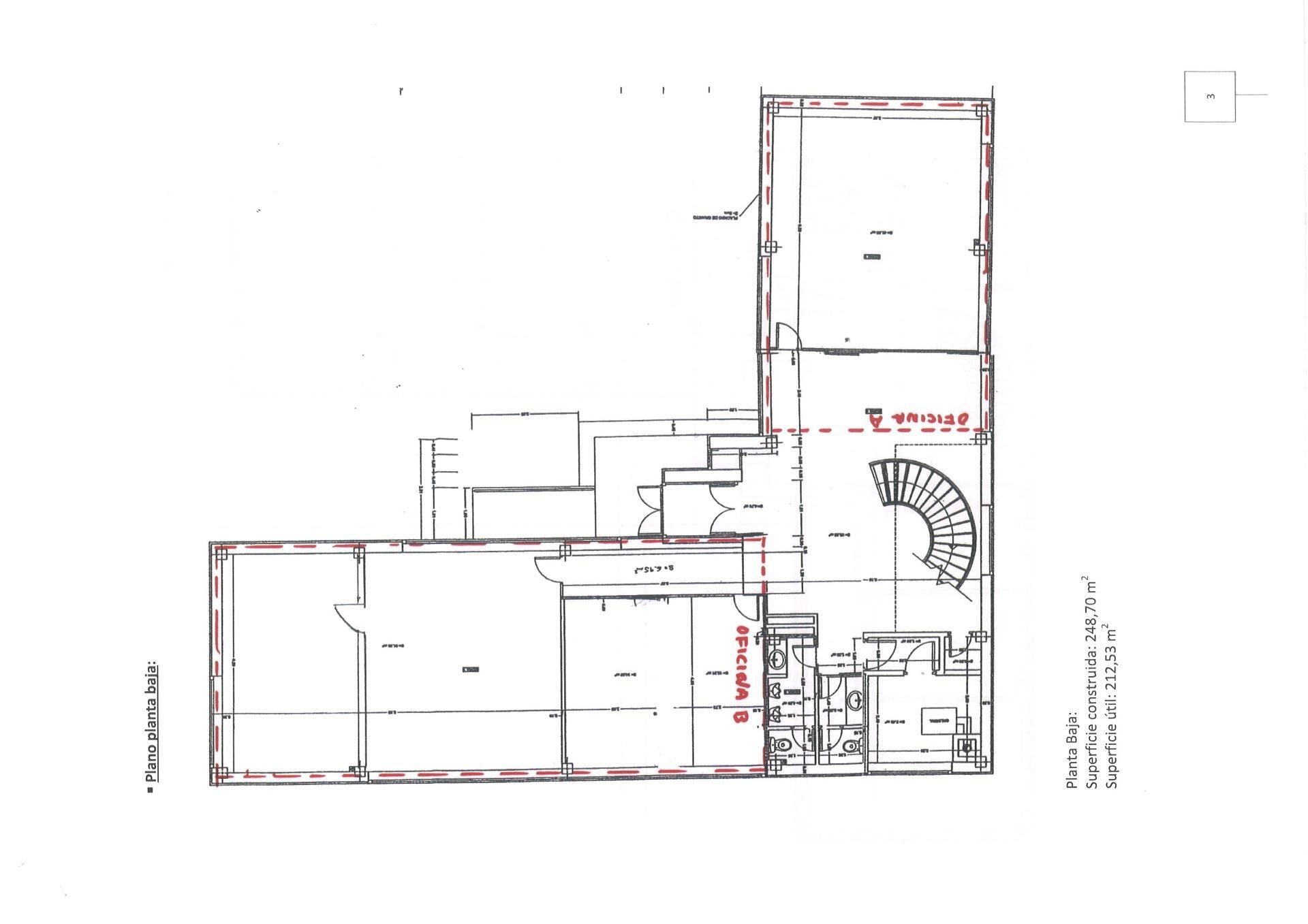
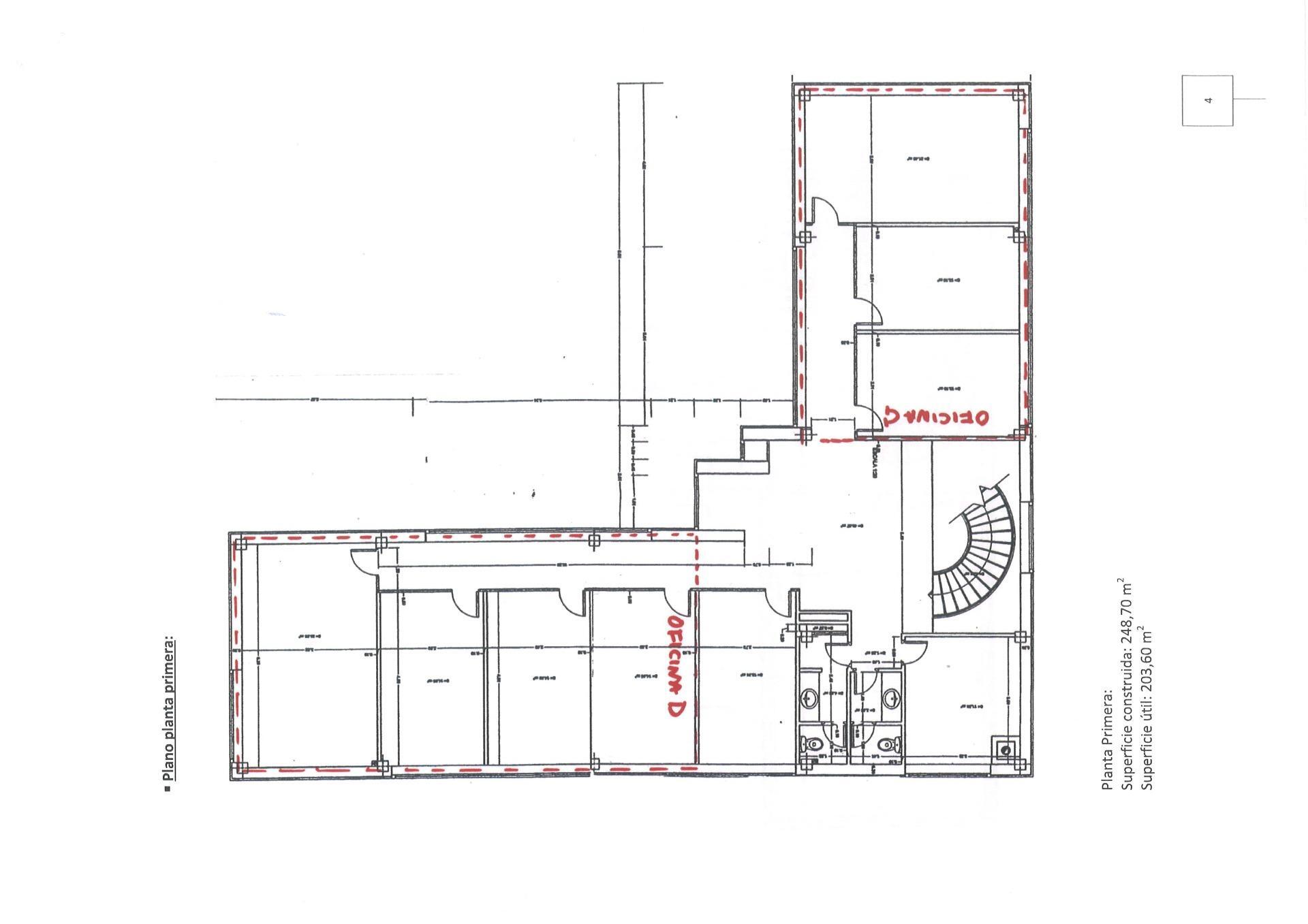
Oportunidad única de adquirir un Edificio de Oficinas ubicado en el prestigioso Parque Empresarial de Venta de Baños. Este inmueble, construido sobre una parcela urbanizada de 1.020 m², cuenta con aparcamiento privado que tiene capacidad para hasta 12 vehículos. Con una superficie total construida de 500 m² distribuidos en dos plantas (baja y primera), destaca por su elegante fachada revestida en granito y muro cortina, brindando luminosidad gracias a su orientación este. La planta baja se compone de un amplio hall recibidor que da acceso a una oficina principal amplia (62 m²) conectada con dos salas adicionales y otras dos estancias independientes, garantizando funcionalidad y versatilidad al espacio laboral. Esta planta incluye también sala técnica destinada a caldera, así como sala dedicada a comunicaciones y dos baños. En la primera planta encontramos otro extenso hall que organiza seis despachos perfectamente iluminados además de contar con dos salas multiusos ideales para reuniones o trabajo colaborativo; adicionalmente dispone también de una sala designada como archivo y dos baños.