Oportunidad de Negocio en Roquetas de Mar - Local Estético en El Sabinar

Galería fotos
€ 83.000
Referencia: 3555_05322
  • Tipo: Negocios
  • Operación Venta
  • Localización Municipio: Roquetas de Mar
  • Localización Población:Roquetas de Mar
  • Habitaciones Habitaciones: 3
  • Terraza Terraza:
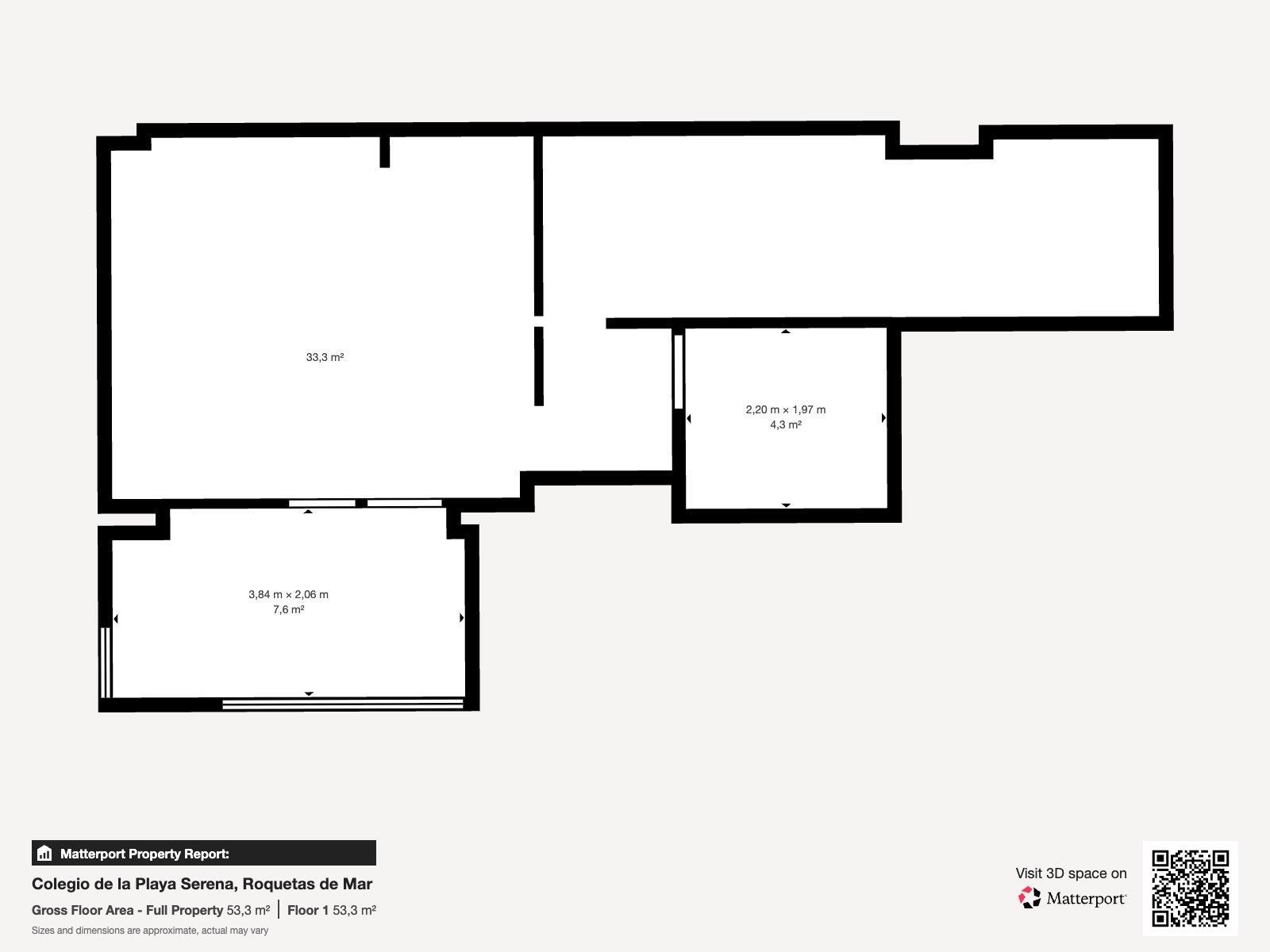
  • Metros construidos Metros: 37m2
  • Año de construcción Año de construcción: 1988

Características

  • Aire acondicionado: no
  • Gastos comunidad: 247.32
  • Estado: Disponible

Detalles

Se presenta a la venta un atractivo local comercial situado en el corazón de El Sabinar, una zona privilegiada y bien comunicada de Roquetas de Mar. Con una superficie construida de 37 m², este negocio anteriormente dedicado al sector estético cuenta con tres habitaciones versátiles que pueden adaptarse a diversas actividades comerciales. Además, dispone de un aseo y está ubicado junto a una plaza concurrida, lo que garantiza visibilidad y afluencia constante del público. Se incluye parte del equipamiento existente para facilitar su puesta en marcha inmediata. Ideal para emprendedores o inversores interesados en establecerse dentro del vibrante mercado local.