- Tipo: Casas o chalets
- Operación Venta
-
Municipio: Las Rozas de Madrid
-
Población:Las Rozas de Madrid
-
Habitaciones: 9
-
Baños: 6
-
Terraza: Sí
-
Piscina: Sí
-
Metros: 1022m2
-
Metros parcela: 2097m2
-
Año de construcción: 2000
Características
- Aire acondicionado: no
- Gastos comunidad: 290
- Estado: Disponible
Detalles
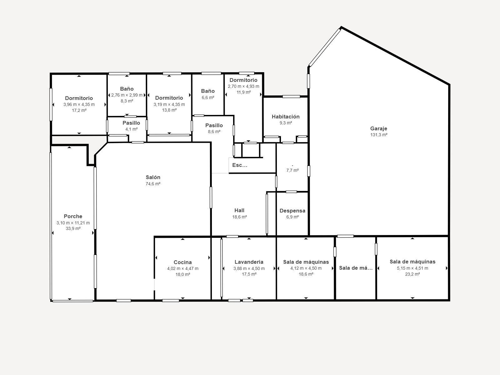
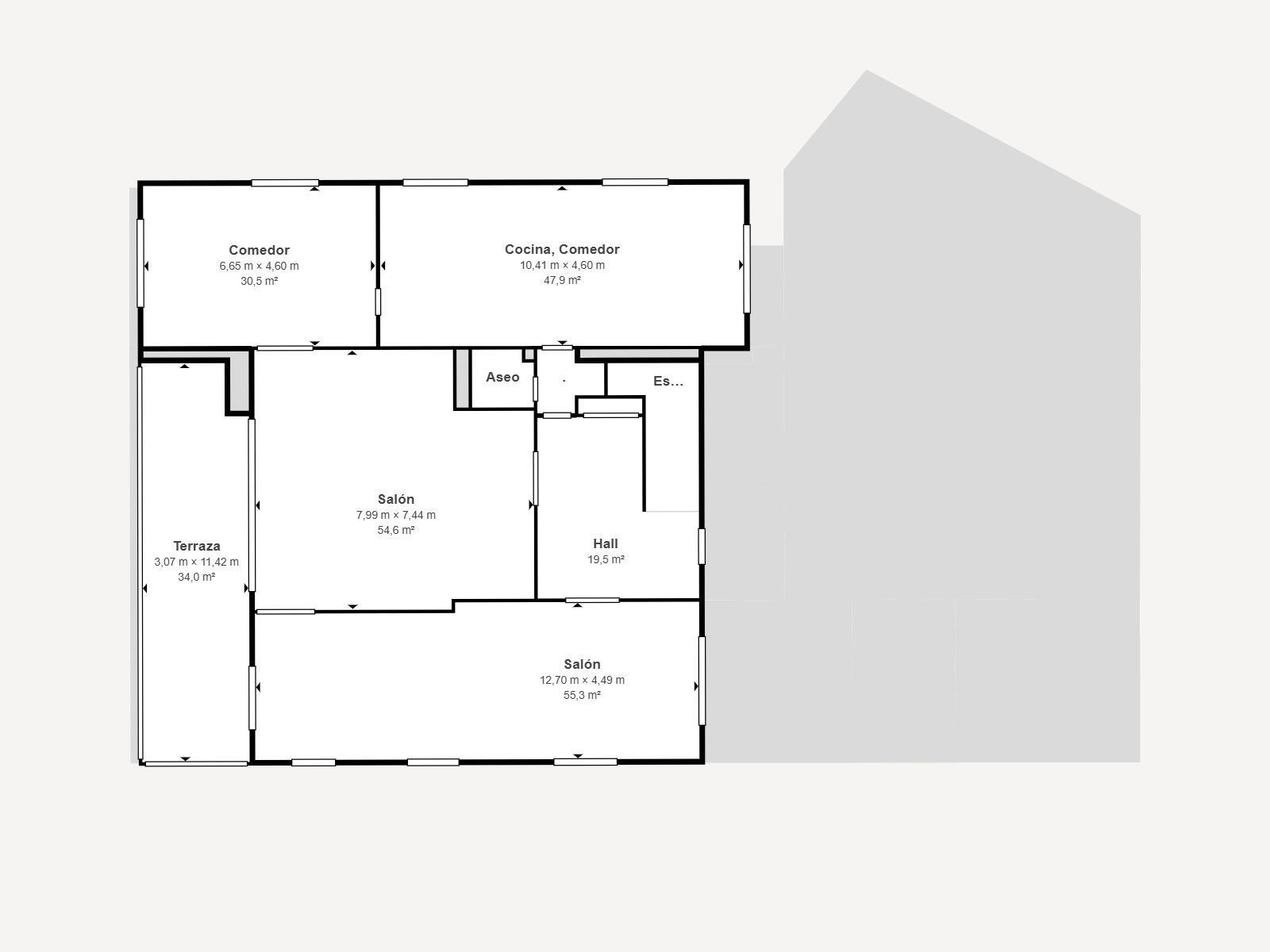
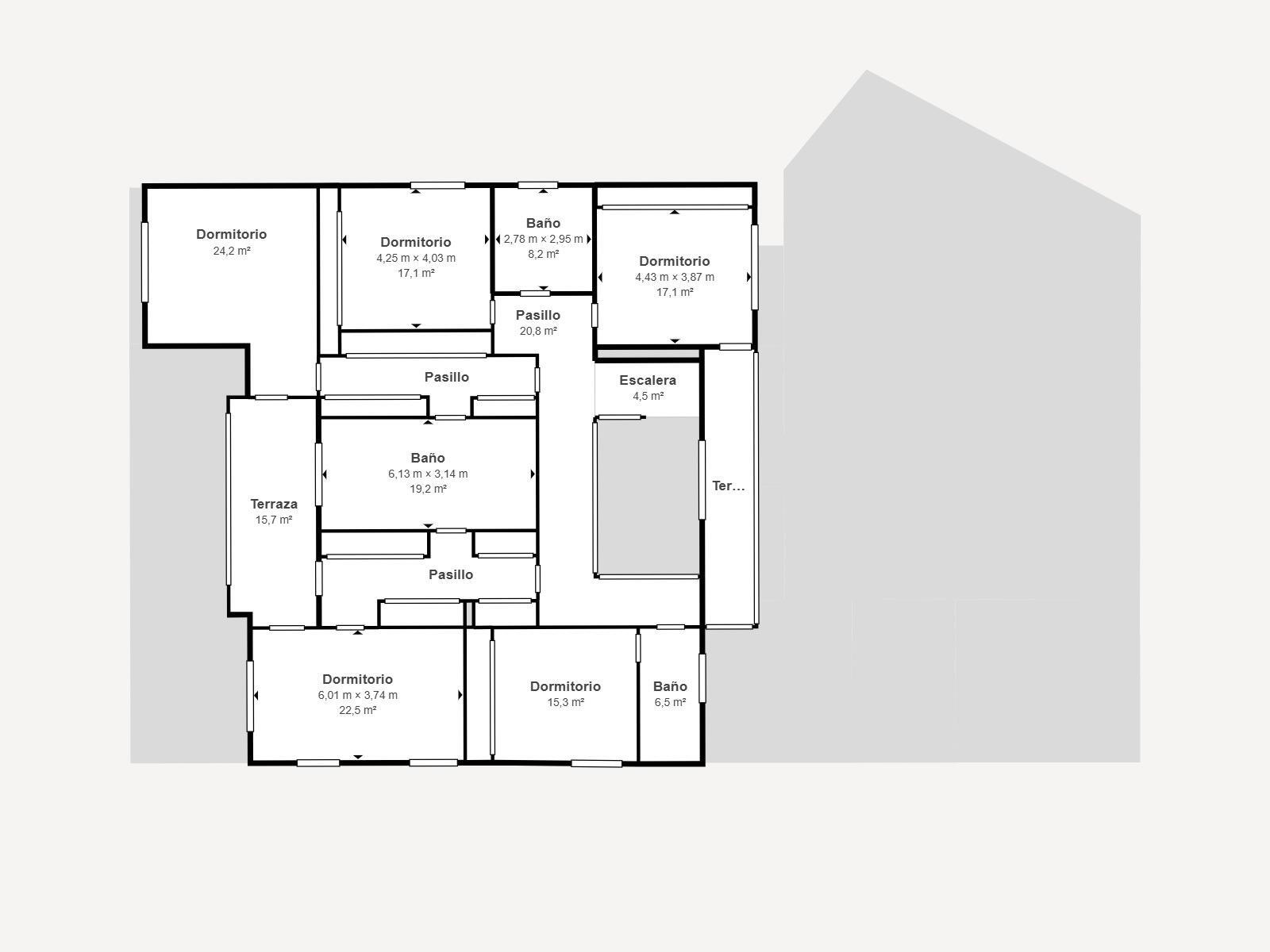
¡ESPECTACULAR Y ELEGANTE VIVIENDA! de tres plantas, 1.022 M2, 9 DORMITORIOS Y 6 BAÑOS, en una parcela de 2.097 M2 EN LA EXCLUSIVA URBANIZACIÓN CERRADA DE La Chopera, en Las Rozas, CON SEGURIDAD 24 HORAS. Con unas impresionantes VISTAS a la Sierra madrileña desde amplios ventanales y terrazas, esta casa de una GRAN PERSONALIDAD es un remanso de paz, independencia y tranquilidad que cautiva en cada uno de sus espacios y que se encuentra solo a 23 kilómetros del centro de la capital. Se trata de una casa con ALTA CALIDAD ARQUITECTÓNICA Y CONSTRUCTIVA, en EXCELENTE ESTADO DE CONSERVACIÓN, que une lujo y funcionalidad. Elegantes columnas aportan personalidad a las armónicas fachadas. Todas sus dependencias, de TECHOS ALTOS, dan al exterior a través de amplios ventanales, terrazas y puertas que comunican el interior con el jardín, el rico paisaje y el horizonte. Cada detalle está pensado para garantizar la alta calidad de vida de toda la familia. La vivienda está actualizada y cuidada con máximo esmero. La propiedad, en la mejor zona de la urbanización La Chopera, está distribuida: PLANTA BAJA: -Hall de entrada de 19,5 m2 -Dos amplios salones de 55,3m2 y 54,6m2. Uno de ellos con chimenea. Desde los salones se divisan ESPLÉNDIDAS VISTAS A LA SIERRA MADRILEÑA -Cocina independiente de 47,9m2 -Comedor de 30,5 m2 -Terraza de 34 m2 -Cómodo Aseo PLANTA 1: -Dormitorio principal de 24,2 m2 -Baño de 19,2 m2, diseñado a capricho con gran ventana con vistas a la Sierra, bañera con hidromasaje y plato de ducha y claraboyas -2 Amplios vestidores independientes de ensueño -Terraza de 15,7 m2 -4 Dormitorios de 23, 17, 15 y, 15 m2 -Baño completo con bañera con hidromasaje y plato de ducha, de 8,2m2 -Baño completo con bañera, de 6,5 m2 -Pasillo de 20,8 m2 PLANTA -1 -Amplio y confortable salón comedor de 74,6 m2 con chimenea, desde el que se accede al porche, piscina y jardín -Cocina de 18 m2 -4 Dormitorios, de 17, 14, 12 y 9 m2. Uno de ellos para el servicio con su correspondiente baño completo. Todos los espacios son exteriores. -1 Baño completo, adaptado para personas de movilidad reducida con una puerta amplia -Despensa de 6,9m2 -Bodega -Cuarto de Lavandería y planchado de 17,5m2 -2 Salas de máquinas en excelente estado de mantenimiento, de 23 y 18,6 m2 --Porche, de 34 m2 -Piscina climatizada, de agua salada -Amplio y cuidado jardín con un coqueto cenador -Garaje cubierto para 8 coches Los cierres de ventanas y persianas, de máximas calidades, están automatizados y el control del aire acondicionado y la calefacción se realiza por habitaciones y plantas. La propiedad cuenta con un sistema de seguridad que se gestiona domóticamente a través de cámaras y sensores. La urbanización La Chopera tiene excelentes comunicaciones mediante transporte público gracias a los autobuses de línea que paran en diferentes tramos de la zona, y goza también de la cercanía de centros comerciales y de servicios, como Európolis (5 min), Gran Plaza (10 min), Las Rozas Village, The Style Outlets y Heron City; restaurantes, importantes colegios, polideportivos, supermercados, centros de salud y hoteles. Se encuentra ubicada a sólo 25 minutos del centro de Madrid.