Propiedad en venta en Asturias, Avilés

Galería fotos
€ 119.000
Referencia: 3431-17808
  • Tipo: Pisos
  • Operación Venta
  • Localización Municipio: Murcia
  • Localización Población:Avilés
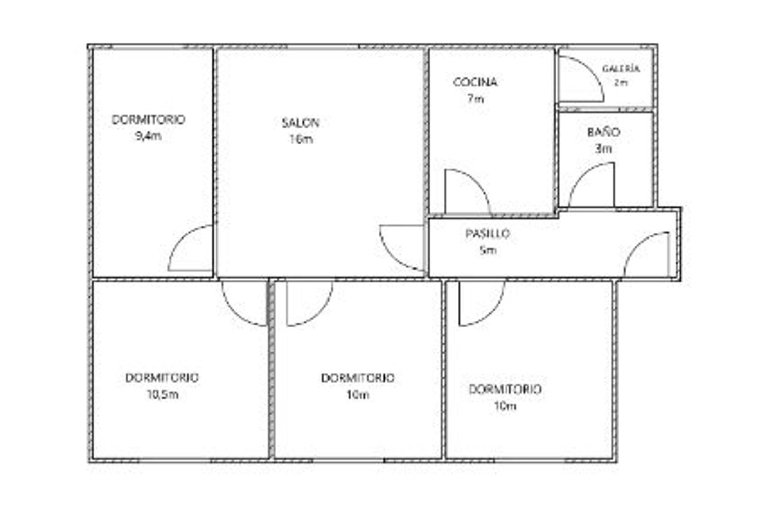
  • Habitaciones Habitaciones: 4
  • Baños Baños: 1
  • Trastero Trastero:
  • Terraza Terraza:
  • Metros construidos Metros: 89m2
  • Año de construcción Año de construcción: 1954

Características

  • Aire acondicionado: no
  • Gastos comunidad: 60
  • Estado: Disponible

Detalles

Si buscas un hogar espacioso donde cada miembro de la familia tenga su propio lugar, este piso de 89 m² es la respuesta. Ubicado en una de las zonas más tranquilas y familiares de Avilés, esta vivienda destaca por su calidez natural y por estar situada en un edificio que ya ha hecho los deberes para el futuro. Un hogar eficiente y lleno de luz. Este tercer piso es totalmente exterior, lo que garantiza sol durante todo el día y unas vistas despejadas que aportan una sensación de libertad única. Además, la familia disfrutará de un confort máximo gracias a las mejoras ya realizadas en el edificio: - Fachada renovada con aislamiento térmico: Una casa más cálida en invierno y fresca en verano. - Ventanas de PVC de alta calidad: Silencio absoluto y eficiencia energética. - Proyecto de Ascensor aprobado: Actualmente se accede por escalera, pero el edificio ya cuenta con el proyecto para la instalación del ascensor, lo que garantiza una comodidad total a corto plazo y una revalorización inmediata de la vivienda. Espacio para todo lo que necesitas La distribución está pensada para aprovechar cada metro cuadrado: - 4 Habitaciones amplias: Ideales para familias numerosas, para tener un cuarto de juegos o un despacho amplio para teletrabajar. - Cocina-Comedor: El punto de encuentro perfecto para el día a día. - Baño completo y estancias en muy buen estado de conservación. - Trastero incluido: La solución perfecta para guardar bicicletas, ropa de otra temporada y mantener el orden en casa. Ubicación ideal para el día a día Vivir en la Calle La Regenta significa tenerlo todo a mano: colegios, parques para los niños y supermercados, sin perder la rapidez de conexión con el centro de Avilés o las salidas hacia Gijón y Oviedo. Un piso listo para convertirse en tu próximo hogar, con la tranquilidad de un edificio actualizado y todo el espacio que tu familia se merece. ¿Quieres visitarla? Contacta con nosotros y descubre todas sus posibilidades.