- Tipo: Negocios
- Operación Venta
-
Municipio: Alcalá del Río
-
Población:Alcala del Rio
-
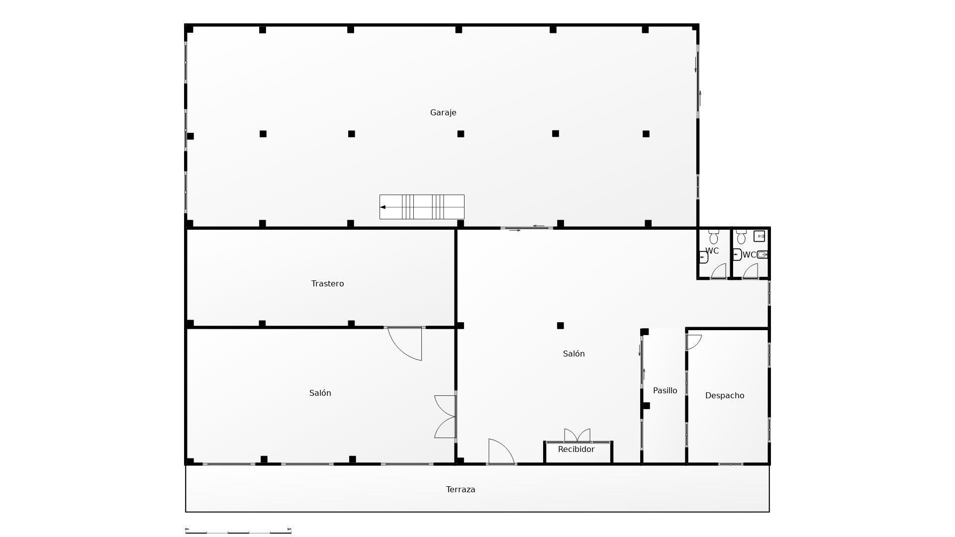
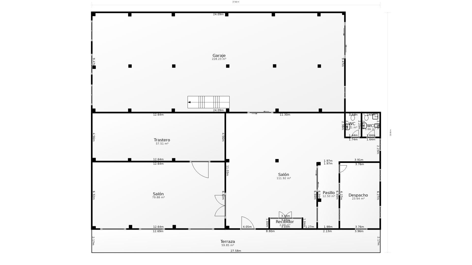
Metros: 635m2
-
Metros parcela: 691m2
-
Año de construcción: 1992
Características
- Aire acondicionado: no
- Orientación: Sur::Oeste
- Estado: Disponible
Detalles
Magnífico local comercial en Alcalá del Río, Sevilla, ubicado en una zona residencial de gran afluencia frente Mercadona. Con un área construida de 635 m², el espacio se distribuye eficientemente entre una amplia zona de exposición-venta y un mostrador que garantiza la atención al cliente efectiva ademas de una gran oficina. El inmueble dispone también de un cómodo almacén situado en la parte trasera del local y planta superior, cuenta con acceso para vehículos a través de un amplio portón lateral y muelle de carga. Su luminosidad destaca gracias a sus grandes ventanales que aportan luz natural durante todo el día. Además, está climatizado para asegurar el confort tanto del personal como de los clientes; la fachada tiene gran visibilidad desde la avenida principal. Hay dos accesos separados que permiten fluir cómodamente entre clientes y personal laboral e incluye sistema alarmado para mayor seguridad. Los planos proporcionados son de carácter aproximado, por lo que las dimensiones y medidas indicadas son orientativas, al igual que la perpendicularidad de las paredes, y deben ser verificadas por el comprador para garantizar su exactitud. En cumplimiento de las obligaciones de información previstas en la Ley 10/2025, de 28 de diciembre, de servicios de atención a la clientela y transparencia, así como en la normativa sectorial vigente, se hace constar que el precio indicado no incluye los gastos e impuestos inherentes a la adquisición, los cuales se desglosan a continuación: PRECIO DE VENTA: 690.000 PVP + GASTOS ? GASTOS: * Impuesto sobre Transmisiones Patrimoniales (ITP): Se aplicará el tipo impositivo vigente en la Comunidad Autónoma de Andalucía generalmente el 7%, sin perjuicio de tipos reducidos del 3,5%, 1,2% o 1% aplicables según las circunstancias personales del comprador o las características del inmueble). El impuesto se devenga sobre el Valor de Referencia de Catastro o el precio de venta, aquel que resulte superior. * Gastos de Notaría: Los honorarios notariales se calcularán conforme al arancel oficial regulado en el Anexo I, del Real Decreto 1426/1989, de 17 de noviembre, por el que se aprueba el arancel Notarial. * Gastos de Registro: La inscripción en el Registro de la Propiedad se facturará según el arancel oficial establecido en el ANEXO I, del Real Decreto 1427/1989, de 17 de noviembre, por el que se aprueba el arancel Notarial. * Gastos de Gestión (Gestoría): Los honorarios por la tramitación administrativa, liquidación de impuestos e inscripción registral ascienden aproximadamente a 600 ? (IVA incluido). * Honorarios Agencia del Vendedor: incluidos en el PVP. * Honorarios Agencia del comprador: no incluidos en el PVP. D.I.A. (Documento Informativo Abreviado) y Certificación Energética a disposición del cliente.