Propiedad en alquiler en Madrid, Madrid

Galería fotos
€ 800
Referencia: 3248-25045
  • Tipo: Negocios
  • Operación Alquiler
  • Localización Municipio: Madrid
  • Localización Población:Madrid
  • Habitaciones Habitaciones: 2
  • Baños Baños: 1
  • Terraza Terraza:
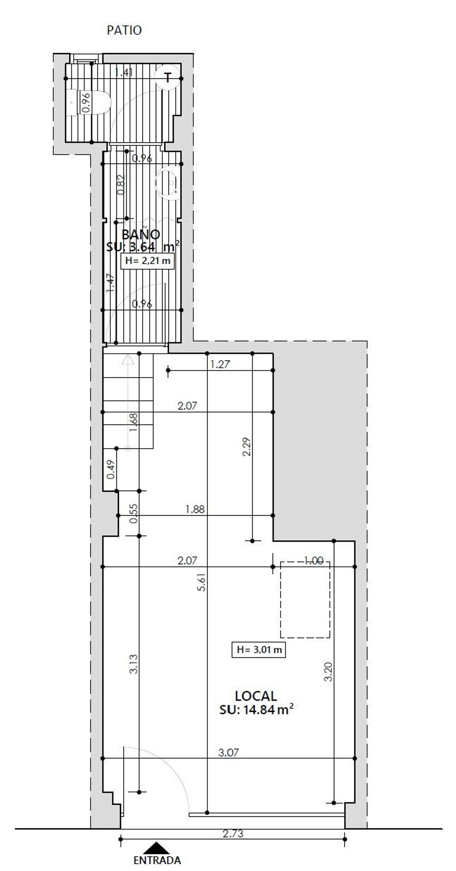
  • Metros construidos Metros: 45m2
  • Año de construcción Año de construcción: 1957

Características

  • Aire acondicionado: no
  • Estado: Disponible

Detalles

En pleno corazón se Chamberí, presentamos este coqueto local, que se encuentra a pie de calle con mucha luz natural todo el día gracias a su fachada de cristal y a su buena orientación al oeste. Al estar en una de las principales calles comerciales del barrio de Chamberí tiene alta visibilidad a todas horas, algo muy bueno para cualquier tipo de negocio. Está reformado y es un local polivalente y versátil. Es ser diáfano y sin columnas, pero no tiene salida de humos. Consiste en una planta principal a pie de calle de 19 metros cuadrados desde donde se puede bajar a un sotano de aproximadamente 26 metros cuadrados por medio de una escalera con puerta en el suelo. El local tiene un buen cierre con cortina metalica de apertura manual. Tiene un baño, refrigerador y microondas. Para visitas ponte en contacto conmigo. Se solicitan 2 meses de fianza y 2 meses de garantia adicional.